Koronapandemian vauhdittama tutkimus pureutui joustavaan ja terveelliseen asumiseen Etelä-Pohjanmaalla. TAKO- ja JOTAR-hankkeissa selvitettiin 1200 kem² puukerrostalon mahdollisuuksia palveluja lähellä olevan asumisen tarjoamisessa seutukaupunkien ja kuntakeskusten vanhenevalle väestölle ja etätyötä tekeville paluumuuttajille. Metodina oli tutkimus suunnittelun kautta.
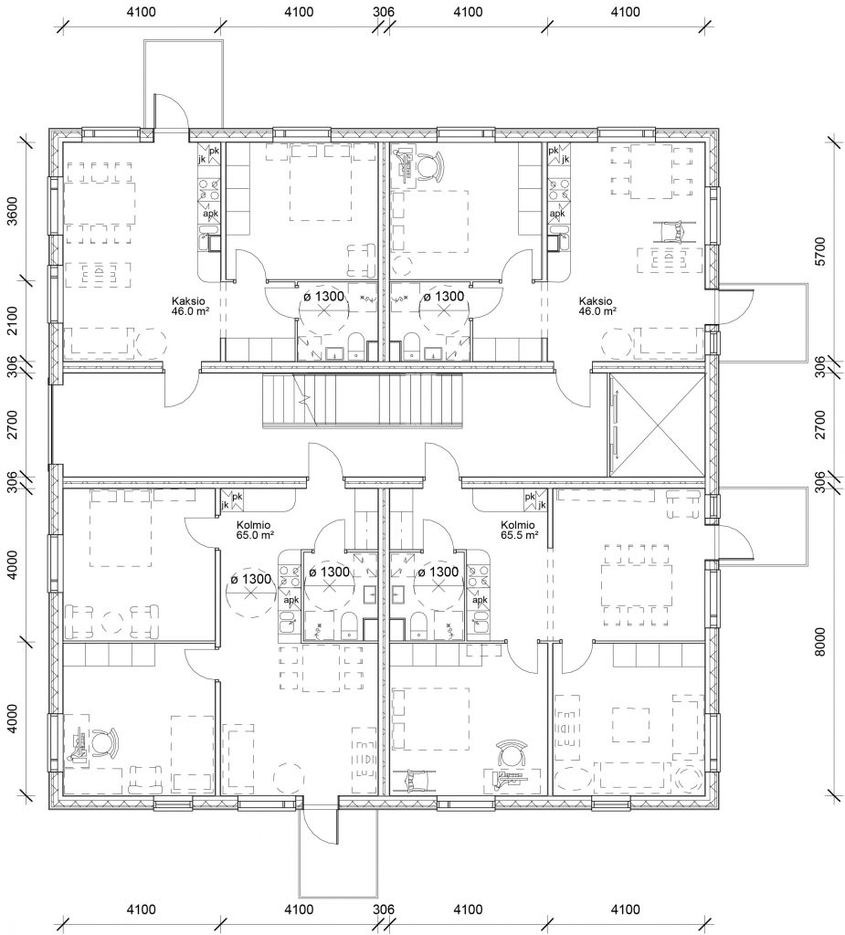
Kuva 1: Kauhajoen Asevelitien talot saavat värinsä perinnerakentamisesta. Porrashuone on kadun puolella pohjoisessa.
Vuosina 2021–2023 Tampereen yliopiston ja Seinäjoen ammattikorkeakoulu SEAMK:in yhteistyössä suorittamat TAKO (Työ ja asuminen korona-arjessa) ja JOTAR (Joustavan ja terveellisen asumisen rakentajat) olivat hankkeita, joissa pyrittiin ratkaisemaan terveysturvallisen, joustavan ja kestävän asumisen kiperiä haasteita. Hankkeille antoi kipinän kevättalvella 2020 alkanut koronapandemia, joka ajoi monet kotiinsa niin työ- kuin vapaa-ajaksikin. Asuntojen laatuongelmat nousivat esiin pandemia-aikana, koska kodin sisällä vietetty aika kasvoi hyvin paljon. Toiveikkaat puheet kauppakeskuksista yhteisenä olohuoneena sai unohtaa.
Kaksivuotisen hankkeen aikana pandemia laantui, ja sen painoarvo tutkimuksessa väheni. Suurin osa asumisen laatua pandemiassa heikentävistä piirteistä heikentävät sitä myös ”normaalina” aikana. Kenties selkein tällainen havainto liittyy asuintilojen monikäyttöisyyden heikkouteen – yleensä siihen, ettei olo- ja makuuhuoneita voi uusissa kerrostaloasunnoissa kalustaa eri tavoin. Tyypillisesti tämä johtuu liian putkimaisesta muodosta, mutta siihen liittyy myös kulkuväylien määrä; jos kolmion olohuoneen jokaisella seinällä on ovi, eli se on läpikulkutilana kahteen makuuhuoneeseen ja parvekkeelle, jäävät kalustusmahdollisuudet pieniksi. Makuuhuone, johon ei mahdu parisängyn lisäksi muuta, ei mahdollista erilaisia elämäntyylejä.
Pandemiassa tämä tarkoitti sitä, ettei rauhallista, vapaa-ajasta erotettavaa etätyötilaa voinut kalustaa asuntoon. Ryhmäharrastusten siirtäminen kotiin kävi vaikeaksi ilman harrastustilaa. Pandemian helpotettua etätyöstä tuli monelle osa uutta normaalia, mutta ne, jotka eivät voineet sitä tyydyttävästi kotonaan tehdä, saivat palata toimistoihin. Sosiaalisen elämän palattua monikäyttöisyyden vanhat ongelmat palasivat: asuntojen pienuus ja joustamattomuus vaikeuttaa illanistujaisten järjestämistä, ja minimiyksiöissä asunnon yksityisen ja puolijulkisen tilan erottaminen on mahdotonta. Sama vaiva, erilaiset oireet.
Kuva 2: Kauhajoen Asevelitien tilamoduulirakenteinen kerrostalo, 2.–4. kerros. Asuintiloissa on painotettu monikäyttöistä raakatilaa.
Asuntosuunnitelmia Etelä-Pohjanmaalle
TAKO- ja JOTAR-hankkeiden metodina oli tutkimus suunnittelun kautta. Tampereen yliopiston arkkitehtuurin yksikön tutkijat selvittivät asuntosuunnittelun kautta sitä, millaisia joustavat ja terveelliset kerrostaloasunnot voisivat olla. SEAMK:in asiantuntijat tutkivat hyvinvointiteknologian uusia mahdollisuuksia. Laitosten yhteistyö oli hedelmällistä, sillä kohdealueella Etelä-Pohjanmaalla merkittäväksi asukasryhmäksi havaittiin vanhat ihmiset, joille hyvinvointiteknologiasta on potentiaalisesti hyötyä.
Kenties selkeimmäksi toimintakentäksi muodostuivat maakunnan seutukaupungit ja kuntakeskukset, joiden asukasmäärä on laskeva. Muuttotappioalueelle suunnitteluun liittyy kysymyksiä: onko alueelle perusteltua rakentaa uusia kerrostaloja, joihin kuluu luonnonvaroja? Rakentaminen aiheuttaa aina hiilipiikin, joiden minimoiminen olisi tärkeää juuri nyt. Toisaalta se, että paikkakunnan asukasmäärä pienenee, ei ole sama asia kuin se, että taajamien kerrostaloasukkaiden määrä vähenisi. Kauhajoen, Alavuden, Alajärven ja Kuortaneen maaseudulla asuu runsaasti vanhoja ihmisiä, joille omakotitalon ylläpito käy raskaaksi. Kotona asumista halutaan jatkaa ja siihen on edellytyksiäkin, kunhan palvelut ovat lähellä. Laadukas, esteettömäksi suunniteltu kerrostaloasunto on haluttu ratkaisu. Lisäksi kohdepaikkakunnat havittelevat paluumuuttajia valttikorttinaan etätyön mahdollisuudet ja asumisen halvempi hintataso – sekä hankkeiden tavoitteiden mukaisesti laadukkaat asumukset.
Puukerrostalo paikallisin voimin
Kohdepaikkakunnilla asuntorakentamisen lainalaisuudet ovat erilaisia kuin suurissa kaupungeissa, joihin tutkimukset aiheesta keskittyvät. Hankkeissa tehtiin yhteistyötä kuntien ja paikallisten rakennuttajien sekä urakoitsijoiden kanssa. TAKO keskittyi asuntosuunnittelun teoriapainotteisesti, ja JOTAR-hankkeessa suunnitelmia vietiin yritysten kanssa kohti toteutusta. Neuvotteluissa selvisi, että ideaali lähtökohta on 1200 kem² asuinkerrostalo, sillä tällaiseen rakennukseen ei tarvitse tehdä väestönsuojaa, rakennuttajan kannalta kallista ja teknisesti haastavaa investointia. Ristiriitaisesti tämä havainto osui aikaan, jolloin Venäjä hyökkäsi Ukrainaan ja Suomen poikkeuksellinen väestönsuojelulainsäädäntö keräsi kiitosta. Toisaalta pienissä keskuksissa väestönsuojelu voidaan hoitaa keskitetysti.
Rakennuttajien mukaan 1200 kem² on tarpeeksi suuri rakennus, jotta rakennushankkeeseen kannattaa ryhtyä, mutta toisaalta riittävän pieni, jos asuntojen menekki ei ole varma. Tämä arvio on tosin tehty ennen alan näkymien synkkenemistä viime kuukausina. Kohteet suunniteltiin puurakenteisiksi joko CLT-tilamoduuleista tai tasoelementeistä. Tähän kannusti paikallinen teollisuus, joka juurrutti rakennushankkeet paikalliseen työhön ja yhteisöön. Tätä tukivat myös puun terveysvaikutukset, joihin kuuluvat pandemian leviämistä torjuva antibakteerisuus sekä etätyöhön hyvin sopiva stressiä lieventävä vaikutus. Kauhajoen 4-kerroksiset talot suunniteltiin tilamoduuleista, mikä johti yksinkertaiseen, geometriseen muodonantoon. Kuortaneen 3-kerroksinen talo suunniteltiin tasoelementeistä, mikä mahdollisti joustavamman suunnittelun ja vähemmän toisteiset asunnot. Kauhajoella valintaan vaikutti paikallinen tilamoduulitehdas, Kuortaneella taas urheiluopisto lukioineen ja vanhojen sekä nuorten asukkaiden asumisen yhdistäminen. Demosuunnitelmien tarkoitus oli tarjota ideoita ja selventää tutkimuksessa havaittuja asumisen laatuun vaikuttavia seikkoja.
Kauhajoen Asevelitie
Kauhajoen Asevelitien kerrostalot suunniteltiin avoimen ja monipuolisesti kerrostuneen korttelin pohjoislaidalle tien eteläpuolelle (kuvat 1 ja 2). Yhteen rakennukseen suunniteltiin seitsemän 51,5 m² kaksiota ja kuusi 65 m² kolmiota. Kaksiot koostuvat 9300 x 6000 mm moduulista ja kolmiot kahdesta 8000 x 4200 mm moduulista. Asunnot ryhmittyvät yhden porrashuoneen ulkopuolelle ja aukeavat 2–3 suuntaan; näin ei tarvita useampaa hissiä tai läpi rungon asuntojen kannalta tuhoisaa keskikäytävää. Tilavat 17 m² huoneet ovat raakatilaa, jonka käytön asukas saa määritellä itse. Esimerkiksi vanha pariskunta tarvitsee vain yhden makuuhuoneen ja voi sisustaa toisen harrastushuoneeksi tai salongiksi; suurempi perhe taas voi jakaa toisen makuuhuoneen kahdeksi lastenhuoneeksi. Kaksioon on mahdollista sisustaa rauhallinen etätyöpiste.
Kauhajoen Topeeka 39
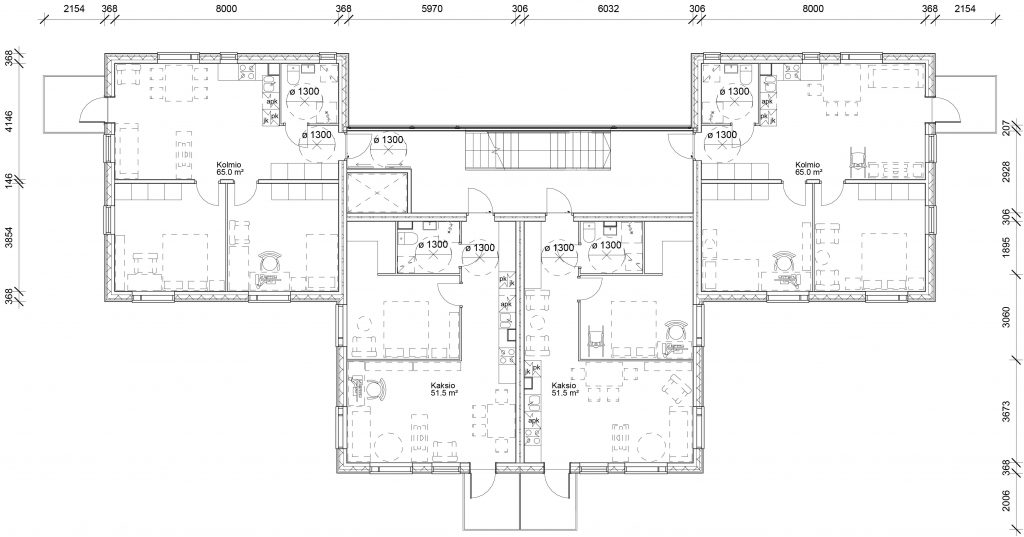
Toinen Kauhajoen suunnitelma tehtiin samalla tilaohjelmalla hyvin erilaiselle, kaltevasti joen rantapuistoon laskeutuvalle tontille pääkatu Topeekan varrelle. Asevelitiestä poiketen muoto on neliömäisen massiivinen (kuvat 3 ja 4). Yksiköiden puuttumisen ja kohtuullisten ulkomittojen takia asunnot asettuivat kuitenkin mukavasti itä-länsisuuntaisen porrashuoneen eri puolille. Rakennuksessa on kuusi 46 m² kaksiota ja seitsemän 65 m² kolmiota; moduulimitat ovat 8200 x 5700 mm sekä 8000 x 4200 mm. Jokainen asunto aukeaa kahteen suuntaan, ja olohuoneiden sekä parvekkeiden asettelussa on huomioita lännessä oleva katu ja idässä oleva jokimaisema.
Kuva 3: Kauhajoen Topeekan puukerrostalo keskellä. Pääkadun varteen on varattu liiketilaa. Parvekkeilla on jokinäkymä.
Kuva 4: Topeekan pistetalotypologia mahdollistaa kahteen suuntaan aukeavat kulma-asunnot. Neliömäiset tilat on helppo kalustaa eri tavoin.
Kuortaneen keskusta
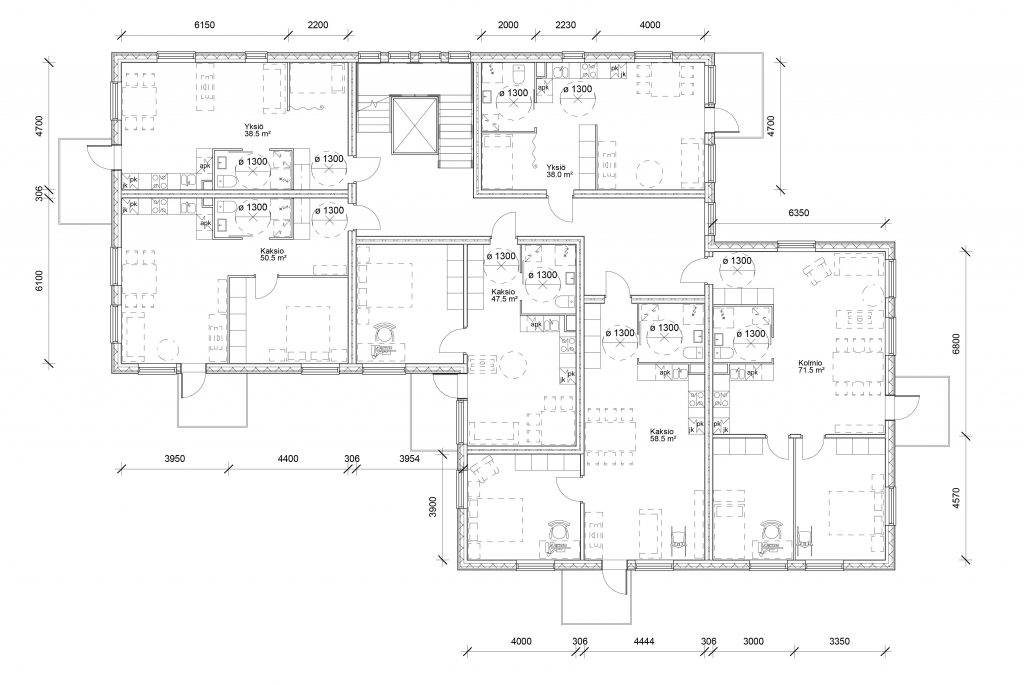
Kuortaneen kerrostalot suunniteltiin maisemallisista syistä 3-kerroksisiksi, jolloin niistä tuli laajempia (kuvat 5 ja 6). Tämä nosti käytävätilan määrää. Tasoelementtien käyttö mahdollisti monipuolisemmat asunnot, ja kohteeseen suunniteltiin myös yksiöitä, sillä asukasprofiiliin kuului myös ensiasuntoon muuttavia nuoria. Kohteessa painotettiin yhteis- ja liiketiloja keskeisen sijainnin vuoksi. Jokainen asunto avautuu kahteen eri ilmansuuntaan.
Kuva 5: Kuortaneen keskustassa 3-kerroksinen 1200 kem² talo mahdollistaa paikkaan sopivan mittakaavan.
Kuva 6: Kuortaneen kerrostalossa tasomoduulien käyttö mahdollistaa tilamoduuleita vapaamman tilajaon. Asunnot on suunniteltu sekä vanhoille että nuorille asukkaille.
Yhteenveto
Yllä esitellyissä demosuunnitelmissa havaittiin, että 1200 kem² kerrostalo mahdollistaa joustavien asuntojen suunnittelemisen yhden porrashuoneen ympärille. Suurissa kaupungeissa typologia on tuskin tarpeeksi tehokas, mutta se sopii hyvin seutukaupunkeihin ja kuntakeskuksiin. Kerrosalan rajoitus estää runkosyvyyttä kasvamasta liian suureksi ja asuntoja venymästä putkimaisiksi. Ulkovaipan riittävä määrä asunnon pinta-alaa kohden on keskeistä laadun ja hyvinvoinnin kannalta. Ulkovaipan määrä ei liity pelkästään luonnonvalon määrään, vaan se myös vapauttaa asuinhuoneiden järjestelyä; kunkin asuinhuoneen pitää sijaita ulkoseinällä ja niihin on päästävä esteettömästi. Kun asuntolaatikoilla on ulkoseinää useampaan suuntaan, on makuuhuoneiden ovet voitu järjestää lähelle eteistä, jolloin olohuone ei ole juurikaan läpikulkutilana.
Neliömäinen muoto havaittiin kalustettavuuden kannalta parhaaksi. Samoin todettiin, että asuinhuoneiden reipas mitoitus laskee asunnon neliöhintaa, sillä kalliiden märkä- ja keittiötilojen osuus kokonaisuudesta pienenee. Asuinneliöt ovat halpaa laatua. Reipas mitoitus helpottaa hyvinvointiteknologian, kuten nostolaitteiden ja automatiikan, asentamista tarpeen mukaan. Nykymääräykset keskittyvät esteettömyyteen lähinnä eteisissä ja kylpyhuoneissa, mikä ei riitä väestön vanhetessa. Hyvinvoinnin huomioon ottava suunnittelu on tuotava tiloihin, missä aikaa todella vietetään.
Eero Okkonen
Kirjoittaja on arkkitehti SAFA, joka työskenteli Tampereen Yliopiston projektitutkijana TAKO-hankkeessa 2021–2023.
TAKO- ja JOTAR-hankkeita rahoittivat Etelä-Pohjanmaan liitto Euroopan aluekehitysrahastosta, Seinäjoen kaupunki ja Seinäjoen yliopistokeskus. JOTAR-hanke rahoitettiin REACT-EU-välineen määrärahoista osana Euroopan unionin COVID-19-pandemian johdosta toteuttamia toimia.
| Cookie | Duration | Description |
|---|---|---|
| cookielawinfo-checkbox-analytics | 11 months | This cookie is set by GDPR Cookie Consent plugin. The cookie is used to store the user consent for the cookies in the category "Analytics". |
| cookielawinfo-checkbox-functional | 11 months | The cookie is set by GDPR cookie consent to record the user consent for the cookies in the category "Functional". |
| cookielawinfo-checkbox-necessary | 11 months | This cookie is set by GDPR Cookie Consent plugin. The cookies is used to store the user consent for the cookies in the category "Necessary". |
| cookielawinfo-checkbox-others | 11 months | This cookie is set by GDPR Cookie Consent plugin. The cookie is used to store the user consent for the cookies in the category "Other. |
| cookielawinfo-checkbox-performance | 11 months | This cookie is set by GDPR Cookie Consent plugin. The cookie is used to store the user consent for the cookies in the category "Performance". |
| viewed_cookie_policy | 11 months | The cookie is set by the GDPR Cookie Consent plugin and is used to store whether or not user has consented to the use of cookies. It does not store any personal data. |