Viimeisenä vuosikymmenenä rakennettujen kerrostalojen surkeat asuntopohjat johtuvat ennen kaikkea grynderivetoisesta rakentamisesta, rakennuttajien tehokkuusvaatimuksista (suuret runkosyvyydet ja massat) ja siitä, ettei asuntojen laatua valvo kukaan.
”Nykyiset suurkaupungit ovat suuria ihmismateriaalin tuhoajia. Magneetin tavoin ne vetävät puoleensa usein aktiivisinta ja kehityskelpoisinta väestönainesta tuhotakseen sen sitten lyhyessä ajassa. Suvut sammuvat. Ne eivät kestä kaupunkielämän painetta. Vain jatkuvan maaltamuuton tuoma ihmistäydennys tuo pelastuksen.
Nykyinen kaupunkimiljöö, terrorisoiva liikenne, jatkuva hermojännitys, pakokaasujen, noen ja pölyn kyllästämä ilma, on biologiseltakin kannalta kelvoton asuinympäristö.
Käsitykseni mukaan on tämän- ja huomispäivän kaupunkisuunnittelun tärkein tavoite miljöön luominen. Sosiaalisesti ja ennen kaikkea biologisesti oikean elinympäristön luominen. Tapiolan puutarhakaupungin suunnittelussa tämä näkemys on lähtökohta”.
Heikki v. Hertzen: Tapiolan puutarhakaupungin suunnittelusta, Arkkitehti-lehti 1–2/1953
1950-luvun Tapiolan puutarhakaupunkia marraskuussa 2025. Etusivun kuvassa Tapiolan keskusta samana ajankohtana.
"Suomessa grynderit eli perustajaurakoitsijat tehokkuusvaatimuksineen tyypillisesti järjestävät rahoituksen, hankkivat tontin, suunnittelevat rakennushankkeen ja myyvät valmiit asunnot." Suunnittelijalla, joka on grynderin palkkaama, ei ole paljoa mahdollista vaikuttaa lähtökohtiin.
Kerrostalojen runkosyvyydet ovat paljon suurempia kuin 1950–1990-luvuilla. Aluksi rungot olivat yleisesti 1950-luvulla 10,5–12 m, sitten 1970–80-luvuilla 14–15 m ja nykyisin 2010–20-luvuilla jopa yli 20 m. "Mitä suurempi runkosyvyys, sitä pidempi on esimerkiksi yksiössä matka ikkunalta peräseinään." Tänä päivänä asuinrakennukset ovat usein hotellityyppisiä: niissä on keskikäytävä ja asunnot käytävän kummallakin puolella. Mihin ilmansuuntaan asunto ja sen parveke ovat, sillä ei ole grynderille merkitystä. Näin kirjoittaa toimittaja Noona Bäckgren kommentissaan Helsingin Sanomissa.[1]
Helsingin Sanomat kirjoittaa suunnitteluratkaisuista Espoon Finnoon vielä keskeneräisellä asuinalueella[2]. Lisäksi artikkelissa kysyttiin, millainen vaikutus pohjaratkaisulla on asuntojen kysyntään.
”Ei sillä itse asiassa ole vaikutusta”, sanoo myynti- ja markkinointijohtaja Hesarin haastattelussa. ”Ihmiset haluavat tehokkaita neliöitä. He eivät halua mitään ylimääräistä pääkaupunkiseudun hintatasolla.” Hän ei pidä keittiötä eteisessä mitenkään huonona asuntosuunnitteluna. ”Jos keittiö alkaisi vasta myöhemmin eikä heti eteisessä, se olisi nykyistä pienempi [- -] Nukkumatila on pystytty erottamaan päätilasta, mutta minimineliöillä kalustusmahdollisuudet ovat vähäiset.”
Itse väitän, että tilaratkaisut ja valinnat ovat lähtökohtaisia suunnittelukysymyksiä.
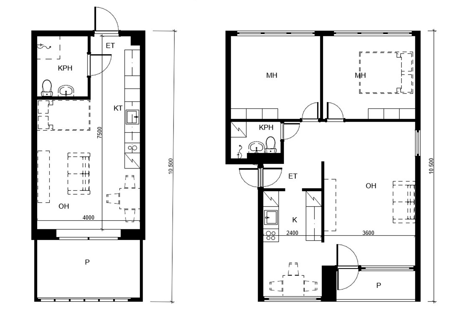
Tehdään vertailu: Arkkitehti Viljo Rewellin suunnittelema ns. Taskumatti-talojen hyväkuntoinen asunto sijaitsee 400 metrin päässä Tapiolan keskustan palveluista. 1959–61 rakennetut Taskumatit eli Tornitasot olivat siihen aikaan harvinaisia keskikäytävätaloja, mutta tässä onnistuneita. Niissä pienet asunnot avautuvat joko itään tai länteen, ja isot parvekkeelliset huoneistot ulottuvat läpi talon. Neliöitä on 35,5 m², ja yhtiöjärjestyksen mukaan 2 h + kk.
Tässä asunnossa eteisen ja kylpyhuoneen leveys on 1100 mm, kun nykyisin vaaditaan 1300 mm pyörähdysympyrä. Taloyhtiössä on tehty kaikki suurimmat remontit. Upeat väljät näkymät kumpaankin suuntaan. Kaksi hissiä 50 asuntoa varten. Hieno yhteinen saunaosasto kattokerroksessa. Entä hinta? Tapiolan asunto maksaa 46 000 € vähemmän kuin Finnoon. Vastike on 72 €/kk isompi, mutta autopaikkavastike 65 €/kk halvempi.
FINNOO 2H+KT+ LAS. PARVEKE, 35.5 m
265 000 €
hoitovastike 162 €/kk
autopaikka 90 €/kk
TAPIOLA 2H+KK, 35,5 m²
219 000 €
hoitovastike 234 €/kk
autopaikka 25 €/kk
Miksi sitten rakennusten ilmansuunnat, asuntojen pohjaratkaisut sekä asuntojen varustetason mitoitus olivat niin paljon parempia aikaisempina vuosikymmeninä kuin nykyisin?
Sotien jälkeen pulakausi ja ankara asuntopula antoi sysäyksen uuteen suunnitteluun ja rakentamisen kehitykseen (tuotantomenetelmien rationalisointi ja rakennuselementtien standardisointi). Vuonna 1949 perustettiin ARAVA, joka tarkoittaa valtion tukemaa asuntorahoitusjärjestelmää. Sen jälkeen aravajärjestelmää on vastannut Asumisen rahoitus- ja kehittämiskeskus ARA. Yhteiskunnan aiemmin voimakas osallistuminen asuntotuotannon tukemiseen tarkoitti sitä, että yhteiskunnan varat oli pyrittävä käyttämään mahdollisimman tarkoituksenmukaisesti. Siitä seurasi tavoitteiden tietoista määrittelyä, suunnitelmallisuutta, sekä tuotannon ohjaamista ja valvontaa.[3]
1980-luvulla pyrittiin asuntojen laatutasoa nostamaan muun muassa suunnittelun ohjauksella. Asuntorahasto julkaisi Asuntohallituksen suunnitteluohje A1:n, joka sisälsi yksityiskohtaisia määräyksiä lainoitettavien asuntojen huoneluvusta, koosta ja varustetasosta. Kohteiden määräyksenmukaisuus tarkistettiin suunnitelmista.
Asuntohallituksen suunnittelun ohjekirjat A1 vuosina 1986 ja 1990 oli tarkoitettu rakennuttajille, suunnittelijoille ja urakoitsijoille. Jo esipuheessa rajattiin kaavalliset asiat ohjekirjan ulkopuolelle, koska niiden vastuu on kunnilla.
Rakennuspaikan ilmansuunnat olivat ohjeissa tärkeät. Sisäiset ja ulkoiset oleskelutilat tuli sijoittaa siten, että ao. tiloihin saadaan riittävästi päivä- ja ilta-aurinkoa ja oli kiinnitettävä huomiota maisemassa oleviin näköaloihin ja korttelikokonaisuuksiin.
Asuntojen tilojen tuli tilamitoitukseltaan ja sijoittelullaan olla sellaisia, että erilaiset kalustamis- ja käyttövaihtoehdot olivat mahdollisia. Esimerkiksi makuuhuoneeseen tuli mahtua parisänky tai vaihtoehtoisesti kaksi erillistä sänkyä, pikkulapsen sänky ja työpöytä. Vähimmäishuonealaksi suositeltiin 12 m², ja tätä makuuhuonetyyppiä tuli käyttää 2 h + k ja sitä suuremmissa asunnoissa.
Pienempään makuuhuoneeseen tuli sijoittaa seinän vierelle (ei ikkunan alle) kaksi sänkyä ja työpöytä. Vähimmäishuonealaksi suositeltiin 10 m². Olohuoneen vähimmäismitan tuli olla 3,6 metriä ja pinta-ala vähintään 15 m².
Ruoanvalmistus- ja ruokailutilat voitiin suunnitella toistensa yhteyteen tai erillisiksi tiloiksi. Ruokailupaikan minimileveys oli 2,4 m ja kiintokalusteiden vieressä 2,6 m. Myös kalusteet ja varusteet oli yksilöity tarkasti. Ikkunallisen keittiön koko oli vähintään 7 m², ja keittokomeroon suositeltiin ikkunaa. Ulkoseinällä olevan viileän komeron vaatimus vaikutti suunnitteluun vielä 1960-luvun alussa.
Vaatenaulakon ja vaatteiden säilytystilat on yksilöity hylly- ja riipputankokomeroiden metrimäärän tarkkuudella. Näitä ohjeita oman sukupolveni suunnittelijat käyttivät vielä 2000-luvulla.[4]
Vuonna 1993 Asuntohallitus lakkautettiin ja aravarahoitus siirtyi uudelle virastolle. Valtion asuntorahasto ARA:lle. ARA ei enää saanut lainoihin käytettäviä varoja valtion budjetista, vaan käytti rahoitukseen vanhaa lainakantaansa, jota myytiin eteenpäin rahoittajille.
Valtion asuntorahaston tehtävät siirrettiin 1. tammikuuta 2008 ympäristöministeriön alaiselle virastolle Asumisen rahoitus- ja kehittämiskeskus ARA:lle.
Mutta palataan Tapiolaan.
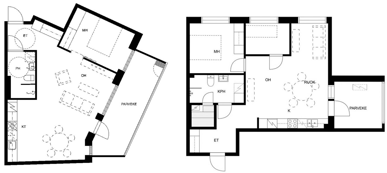
Uusi vuonna 2025 valmistunut 30 m² yksiö 1 h + kt metron ja bussiterminaalin päällä ja Ainoa-kauppakeskuksen vieressä maksaa saman kuin 60-neliöinen kolmio vuonna 1959 valmistuneessa arkkitehti Jorma Järven suunnittelemassa hissittömässä lamellitalossa neljänsadan metrin päässä. Uudessa asunnossa autohallipaikan hinta on 45 000 € (vastike 40 €/kk) ja vanhassa ”taivaspaikka” 12 €/kk. Molemmissa taloyhtiöissä on autopaikkoja tarjolla vähemmän kuin asuntoja. Ohessa pohjapiirrosvertailu kalusteineen sekä parvekenäkymät.[3]
1H+KT+LASIT. PARVEKE 30 m²
oma tontti
rakennusvuosi 2025
hissi
330 000 €
3H+K+PARVEKE 60 m² (verrokki)
oma tontti
rakennusvuosi 1959
ei hissiä
330 000 €
Uusissa asunnoissa saattaa olla kaukokylmä, älylukot, liukuovikomerot, oma sauna ja iso lasitettu parveke. Yllä olevan esimerkin yksiön talossa on 74 asuntoa, mutta vain yksi hissi (tosin tilava tavaroiden muuttoa varten). Lisäksi puuttuu maininta parvekenäkymästä ja annetaan virheellinen kuva asunnon monipuolisesta kalustettavuudesta ja toiminnallisuudesta. Parveke toimiikin usein varastona, ja taloyhtiössä kysellään parvekeverhojen yhteishankinnasta.
Vielä esimerkit uudehkoista lähes yllä olevan verrokin kokoisista asunnonnoista: Vuonna 2023 rakennettu kolmisakarainen tähtikerrostalo. Asunto 2 h + kt, 57 m² lasitetulla parvekkeella.
Asunnon hinta 379 000 € eli 49 000 € enemmän kuin verrokin. Mutta jos maksaa tonttiosuuden, hintaan tulee 86 000 € lisää, eli kokonaishinta on 135 000 € enemmän. Lisäksi tulee vielä pihan alla oleva parkkihallin autopaikan lunastus 26 000 €. Tosin hoitovastike on noin puolet pienempi kuin verrokin eli 170 €/kk vähemmän. Syvä koko huoneiston levyinen lasitettu parveke, joka suuntautuu joko kaakkoon, länteen tai koilliseen, pimentää asunnon luonnonvalolta ja yksi makuuhuone ja keittiö vähemmän.
2H + KT + LASIT. PARVEKE 57 m²
379 000 €
86 000 € tonttiosuus
26 000 € autohallipaikka
491 000 €
3H + AVOK + S+LASIT. PARVEKE 58 M2
429 000 €
29 000 € autohallipaikka
458 000 €
Toisessa esimerkissä vuonna 2024 valmistuneessa talossa on myynti-ilmoituksen mukaan 3 h + avokeittiö + sauna, 58 m². Sekava ja vaikeasti kalustettava pohjaratkaisu, jossa yksi huone ei edes täytä laissa huoneelle määrättyä 7 m² minimikokoa (sitä kutsutaankin myynnissä ”näppäräksi” työtilaksi). Asunnon hinta on 429 000 € eli 99 000 € enemmän kuin verrokin, ja päälle vielä pihan alla oleva hallipaikka. Vastike on 141 €/kk pienempi.
Arkkitehdin rooli grynderivetoisen rakentamisen suunnittelijana ei aina ole kehuttava. Oikeusvaikutteinen asemakaava luo perustan suunnittelulle. Jos et tee mitä käsketään, uusia suunnittelutilauksia ei tule. Toki asetelman voi joskus kääntää edukseen. Niukista lähtökohdista voi myös syntyä hyvää ja uutta ja hyvin kaupaksi menevää. Lisäksi on ns. erilaiset koerakentamiskohteet, joissa voidaan poiketa laista ja niissä lopputuloksessa on onnistuttu kehittämään uutta. Edustavana esimerkkinä tästä on Vaasan asuntomessujen 2008 loftkohde, jossa asuntoparvea ei laskettu kerrosalaan, mutta huoneistoalaan kuitenkin. Huono esimerkki on sen sijaan Vantaan 15,5 m² miniasunnot 2017.
Olin pääsuunnittelijana noin tusinassa kerrostalokohteessa Pohjanmaan rannikkokaupungeissa vuosituhannen alussa. Joskus rakennuttajan ”halvennuskierroksen” vaatimukset olivat minulle vaikeita toteuttaa. Silloin esimerkiksi Vaasassa käännyin rakennusvalvonnan puoleen, mistä onneksi löytyi yhteinen laatustrategia. Koin suunnittelijana, että kollega rakennustarkastajalla oli valta myöntää tai olla myöntämättä rakennuslupaa kaavan vähäisestä poikkeamisesta esimerkiksi kaupunkikuvaan vedoten. Tai hän löysi maankäyttö- ja rakennuslaista pykälän, johon vetosi.
Hankkeet toteutuivat, mutta grynderin kate pieneni. Muistan, kun joskus vuonna 2004 Ruotsin pääkonttorista tuli määräys: ”Asuinrakennuksen, pistetalon, kerrosluku tulee olla kahdeksan ja pohjan ala 20x20 metriä” ja tontin koko sellainen, että vältytään rakenteelliselta parkkiratkaisulta rakentamalla halvemmat taivaspaikat. Ja siitä päästiinkin noin 3000 h-m² hankkeisiin, joita pienempiä isot rakennusliikkeet karttoivat tuohon aikaan.
Jo 75 vuotta sitten ymmärrettiin, ettei täysin sääntelemättömällä asuntotuotannolla ole kehitysmahdollisuuksia. Yhteiskunta on pyrkinyt holhoamaan rakentamista asemakaavan ja lain nojalla. Ne ovat kuitenkin enemmän estäviä kuin edistäviä. Niiden avulla ei voi määrätä, millaisia asuntoja on minnekin rakennettava. Yksityisillä yrittäjillä tulee rakentamisesta sellaista taloudellista etua, että ne lähtevät mukaan ohjelmalliseen ja valvottuun rakennushankkeeseen. Nykyisessä taloustilanteessa myynti ei vedä – eikä ihme. Hinnat pysyvät korkealla. Asuntojen alennusmyynnit ovat yleistyneet. Lisäksi lehdistä saa lukea uusien asuinrakennusten laatuongelmista. Esimerkiksi Sami Takalan artikkeli[5] kertoo pian rakentamisen jälkeen esiin tulleista mittavista puutteista.
Itse näen yhtenä ongelmana kaupunkien jatkuvan tiivistämisen tonttipulaan ja raideliikenteeseen vedoten. Tuoreena esimerkkinä vaikkapa Länsi-Herttoniemen viheralueen kaavamuutos. Mutta jätetään kaavoitukselliset tarkastelut toiseen kirjoitukseen.
Voisiko suurempien kaupunkien rakennusvalvonnoista tulla se apu, joka valvoisi suunnittelun laatua? Toimiihan kunnissa jo erilaisia kaupunkikuvalautakuntia. Kyllä, mutta ongelmana on, että ei ole lainsäädäntöä tukena. Esimerkiksi asuntojen määrää porrastasanteilla ja hissien lukumäärää porrashuonetta kohti ei määritetä missään. Sen sijaan suunnittelua ohjaa ns. excel-ajattelu: myytävien ja myymättömien asuin- ja parkkineliöiden tehokkuusluvut. Aikaisemmassa esimerkissäni on yksi hissi 74 asuntoa kohti. Vapaarahoitteisessa As Oy:ssä on myyty vasta neljännes asunnoista. Johtuuko se yhdestä hissistä, suhdanteista ja kalliista hinnoista, huonoista asuntopohjista, huonoista näkymistä vai kaikista näistä yhteensä? Kun vuokra-asunnoista aikaisemmin oli huutava pula, kaikki huonokin kelpasi ostettavaksi.
Rakennusvalvonnan ja kaavoituksen – joissa myös pitäisi olla vankka asuntosuunnittelukokemus – yhteistyöllä on keskeinen merkitys paremman asuinympäristön luomisessa. Espoon Keilaniemessä kolme 40-kerroksista pyöreätä asuintaloa kutistuvat tavallisiksi kerrostaloiksi ja rakennusyhtiö hakee asemakaavan muutosta kaupungilta. Espoon kaupungista uhkaa tulla markkinoiden ja tonttikauppakirjan muutoksilla rakennusyhtiön yritysriskin miljoonamaksaja. Saa nähdä mahdollistaako asemakaavan muutos tilalle ”Paksu-Bertta” -sapluunalla tehtyjä syvärunkoisia bulkkitaloja.[6]
Matti Karjanoja
Arkkitehti.
Kuvat: Matti Karjanoja.
[1] Noona Bäckgren: Asuntojen suunnittelua ei valvo kukaan, Helsingin Sanomat 23.10.2025
[2] Sami Takala: Kysyimme suurelta rakennusyhtiöltä, miksi uusiin kaksioihin on suunniteltu keittiöt eteisiin, Helsingin Sanomat 23.10.2025
[3] Esko Suhonen: Asuntosuunnittelun edistämisestä, Arkkitehti-lehti 5/1951
[4] Asuntohallitus: Rivi- ja kerrostalojen suunnittelu, Asuntohallituksen ohjekirja A1, tammikuu 1990
[5] Sami Takala: Vesivuodot piinaavat uutta kerrostaloa Espoossa, mutta rakentaja kieltäytyy korjaamasta. Helsingin Sanomat 14.10.2025
[6] Länsiväylä: Keilaniemen asuintalot toteutetaan osissa ja aiemmin suunniteltua matalampana, Länsiväylä 3.11.2025
| Cookie | Duration | Description |
|---|---|---|
| cookielawinfo-checkbox-analytics | 11 months | This cookie is set by GDPR Cookie Consent plugin. The cookie is used to store the user consent for the cookies in the category "Analytics". |
| cookielawinfo-checkbox-functional | 11 months | The cookie is set by GDPR cookie consent to record the user consent for the cookies in the category "Functional". |
| cookielawinfo-checkbox-necessary | 11 months | This cookie is set by GDPR Cookie Consent plugin. The cookies is used to store the user consent for the cookies in the category "Necessary". |
| cookielawinfo-checkbox-others | 11 months | This cookie is set by GDPR Cookie Consent plugin. The cookie is used to store the user consent for the cookies in the category "Other. |
| cookielawinfo-checkbox-performance | 11 months | This cookie is set by GDPR Cookie Consent plugin. The cookie is used to store the user consent for the cookies in the category "Performance". |
| viewed_cookie_policy | 11 months | The cookie is set by the GDPR Cookie Consent plugin and is used to store whether or not user has consented to the use of cookies. It does not store any personal data. |